-
Водоснабжение - 130 м³/час.
-
Водоотведение - 130 м³/час.
-
Электроэнергия - 15 МВт.
-
Природный газ - 1300 м³/час
Принимаются заявки на размещение производства в индустриальном парке "Новый"
В настоящее время для аренды и покупки доступны земельные участки площадью от 3 до 11,5 га.
Характеристики объекта
Концепция greenfield
Площадь 67,5 га Категория земельных участков
Земли промышленности
Вид разрешенного использования земельных участков
автомобильный и железнодорожный транспорт Коммуникации Производственная деятельность
Специализация Промышленно-логистическая
Концепция | greenfield | |
Площадь | 67,5 га | |
Категория земельных участков | Земли промышленности | |
Вид разрешенного использования земельных участков | автомобильный и железнодорожный транспорт | |
Коммуникации | Производственная деятельность | |
Специализация | Промышленно-логистическая |

Инфраструктура парка "новый"
Общая площадь помещений в парке будет до 260 тыс. кв. м доступных для резидентов, одним из которых можете быть Вы. А так же будет доступна следующая инфраструктура
логистика
Индустриальный парк "Новый" расположен в непосредственной близости от автодороги Р-255 "Байкал", что делает удобным грузоперевозки сырья и продукции автомобильным транспортом.
Удобное логистическое расположение
Расстояние до основных транспортных узлов:
резиденты индустриального парка
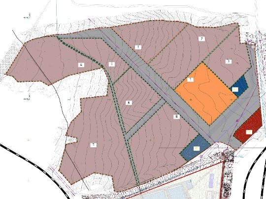
В соответствии с проектом, на территории парка планируется разместить 16 резидентов и создать 850 рабочих мест.
В качестве потенциальных резидентов рассматриваются предприятия, осуществляющие промышленное производство, оказывающие услуги по логистике и хранению.
На территории парка допускается размещение производств IV класса опасности.
Карта площадей
условия размещения на территории парка "новый"
Требование к юридическому лицу:
- не находится в процессе реорганизации, ликвидации или несостоятельности (банкротства), предусмотренных законодательством Российской Федерации
- не является иностранным агентом в соответствии с Федеральным законом от 14.07.2022 № 255-ФЗ "О контроле за деятельностью лиц, находящихся под иностранным влиянием"
- потенциальный резидент не находится в перечне организаций и физических лиц, в отношении которых имеются сведения об их причастности к экстремистской деятельности или терроризму
- предоставление в аренду недвижимого имущества (земельных участков или их частей);
- обеспечение условий для доступа к сетям энерго-, тепло- и водоснабжения;
- содействие в предоставлении правовых, консалтинговых, маркетинговых, информационных, логистических, эксплуатационных, административно-хозяйственных услуг.
Обязательства Резидента:
- осуществление на территории индустриального (промышленного) парка с использованием объектов индустриального (промышленного) парка производственной или иной деятельности не запрещенной действующим законодательством РФ, соответствующую назначению объектов индустриального (промышленного) парка и направленную на получение дохода от её осуществления;
- выполнение условий заключенного Соглашения о ведении промышленно-производственной деятельности на территории индустриального парка "Новый", в том числе обязательства по реализации бизнес-плана;
- соблюдение на территории индустриального парка общего технического, колористического и стилевого решения в отношении производственных объектов и ограждений производственных площадок (согласование указанных требований на стадии подготовки проектно-сметной документации (рабочей документации) с Управляющей компанией).
Подбор персонала
Парк оказывает резидентам поддержку в подборе квалифицированного персонала — от рабочих специальностей до инженерно-технических и административных позиций. Мы сотрудничаем с ведущими образовательными учреждениями и центрами занятости, обеспечивая быстрое и точное комплектование команд в соответствии с потребностями вашего бизнеса.
Государственная поддержка
Специалисты парка предоставляют консультации по действующим мерам государственной поддержки и сопровождают резидентов на всех этапах — от выбора подходящей программы до оформления необходимых документов и получения льгот.
Единое окно
Управляющая компания обеспечивает комплексное сопровождение резидентов на всех этапах ведения бизнеса — от подбора подходящего помещения до поддержки в продвижении продукции и выходе на новые рынки.